Bundesforschungsanstalt für Ernährung

Karlsruhe

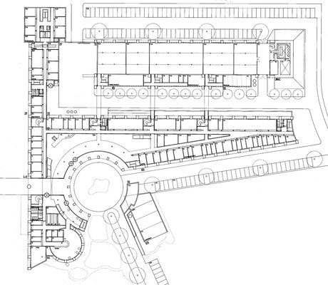
Differenzierte städtebauliche Einfügung der großen Baumasse in das sensible Ring- und Achsenkonzept der Barockstadt Karlsruhe.

Die beiden wichtigen Achsbezüge zum Schloss und zur Haid-und-Neu-Straße werden sehr geschickt in die Komposition miteinbezogen. Aus dem Gegensatz zwischen einer scharf formulierten Kante nach Norden und einer aufgelösten, lockeren Kontur nach Süden lebt der eigentliche Baukörper, aus dieser sehr intelligenten Auflösung erhält das Bauwerk eine einmalige und überzeugende Identität an diesem Ort. Die architektonische Gestaltung des Bauwerks ist zurückhaltend, aber sehr sensibel und feingliedrig und entspricht auch in der Detailausbildung dem Charakter eines Institutsgebäudes.

Kennzahlen
Baukosten: 56,8 Mio. €
KGR: 200 - 700
BGF: 27.000m²
BRI: 156.000m³

Bauherr
Bundesrepublik Deutschland vertreten durch
OFD Karlsruhe Hochbauamt II, Karlsruhe

Verfahrensart
Wettbewerb 1987, 1.Preis

Leistungsumfang
LPH 1 - 9
1990 - 1998

Fertigstellung
1998